Ресиверы – это специальные устройства, воздухосборники, работающие под давлением. Они являются составной частью большинства моделей поршневых компрессоров. Ресиверы обеспечивают стабильную и бесперебойную работу компрессорного оборудования в случае его временного отключения, снижают уровень шума и вибрации.
Важнейшей технической характеристикой ресивера является его объём. Компрессоры разных типов могут быть укомплектованы одним и более ресиверами, имеющими различный объём. Это зависит от таких параметров, как производительность поршневого компрессора и характер его воздухопотребления. Так, профессиональные поршневые компрессоры, используемые в строительстве, имеющие ременной привод в двухцилиндровых одноступенчатых установках, производительность которых от 250 л/мин, предусматривают установку одного или нескольких ресиверов объёмом от 25 до 200 литров. Модели промышленных компрессоров, ориентированных на использование в машиностроении, энергетике, а также химической отрасли и имеющие производительность от 330 до 850 л/мин, комплектуются одним ресивером объёмом от 100 до 500 литров.
Ресиверы, представленные сегодня на российском рынке – это продукция белорусской компании Remeza, итальянского концерна Ceccato и Бежецкого завода. Это качественное и надёжное оборудование, несложное в эксплуатации и обслуживании, с оптимальным балансом цены и качества.
Важнейшей технической характеристикой ресивера является его объём. Компрессоры разных типов могут быть укомплектованы одним и более ресиверами, имеющими различный объём. Это зависит от таких параметров, как производительность поршневого компрессора и характер его воздухопотребления. Так, профессиональные поршневые компрессоры, используемые в строительстве, имеющие ременной привод в двухцилиндровых одноступенчатых установках, производительность которых от 250 л/мин, предусматривают установку одного или нескольких ресиверов объёмом от 25 до 200 литров. Модели промышленных компрессоров, ориентированных на использование в машиностроении, энергетике, а также химической отрасли и имеющие производительность от 330 до 850 л/мин, комплектуются одним ресивером объёмом от 100 до 500 литров.
Ресиверы, представленные сегодня на российском рынке – это продукция белорусской компании Remeza, итальянского концерна Ceccato и Бежецкого завода. Это качественное и надёжное оборудование, несложное в эксплуатации и обслуживании, с оптимальным балансом цены и качества.
Производитель
—
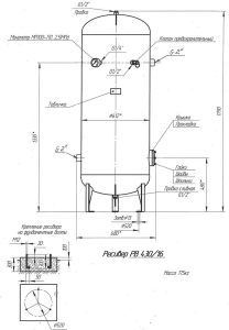
АСО Бежецк
Давление
—
10 атм
Вес
—
150 кг
110 900 руб/шт
В корзину
Купить в 1 клик
Производитель
—
АСО Бежецк
Давление
—
16 атм
Вес
—
190 кг
120 000 руб/шт
В корзину
Купить в 1 клик
Производитель
—
АСО Бежецк
Давление
—
10 атм
Вес
—
60 кг
128 100 руб/шт
В корзину
Купить в 1 клик
Производитель
—
АСО Бежецк
Давление
—
10 атм
Вес
—
255 кг
131 200 руб/шт
В корзину
Купить в 1 клик
Производитель
—
COMPRAG
Давление
—
10 атм
Вес
—
190 кг
124 375 руб
В корзину
Купить в 1 клик
Производитель
—
АСО Бежецк
Давление
—
10 атм
Вес
—
302 кг
174 900 руб/шт
В корзину
Купить в 1 клик
Производитель
—
АСО Бежецк
Давление
—
10 атм
Вес
—
150 кг
223 700 руб/шт
В корзину
Купить в 1 клик
Производитель
—
АСО Бежецк
Давление
—
10 атм
Вес
—
215 кг
355 900 руб/шт
В корзину
Купить в 1 клик
Производитель
—
АСО Бежецк
Давление
—
10 атм
Вес
—
110 кг
Под заказ
Наши менеджеры обязательно свяжутся с вами и уточнят условия заказа
Производитель
—
АСО Бежецк
Давление
—
10 атм
Вес
—
165 кг
По запросу
Под заказ
Наши менеджеры обязательно свяжутся с вами и уточнят условия заказа
Производитель
—
АСО Бежецк
Давление
—
40 атм
Вес
—
160 кг
Под заказ
Наши менеджеры обязательно свяжутся с вами и уточнят условия заказа
Производитель
—
АСО Бежецк
Давление
—
10 атм
Вес
—
255 кг
Под заказ
Наши менеджеры обязательно свяжутся с вами и уточнят условия заказа
Производитель
—
АСО Бежецк
Давление
—
16 атм
Вес
—
175 кг
Под заказ
Наши менеджеры обязательно свяжутся с вами и уточнят условия заказа
Производитель
—
АСО Бежецк
Давление
—
16 атм
Вес
—
111 кг
По запросу
Под заказ
Наши менеджеры обязательно свяжутся с вами и уточнят условия заказа
Производитель
—
АСО Бежецк
Давление
—
10 атм
Вес
—
265 кг
Под заказ
Наши менеджеры обязательно свяжутся с вами и уточнят условия заказа
Производитель
—
АСО Бежецк
Давление
—
10 атм
Вес
—
130 кг
Под заказ
Наши менеджеры обязательно свяжутся с вами и уточнят условия заказа
Производитель
—
АСО Бежецк
Давление
—
10 атм
Вес
—
93 кг
По запросу
Под заказ
Наши менеджеры обязательно свяжутся с вами и уточнят условия заказа
Производитель
—
АСО Бежецк
Давление
—
10 атм
Вес
—
95 кг
Под заказ
Наши менеджеры обязательно свяжутся с вами и уточнят условия заказа
Производитель
—
АСО Бежецк
Давление
—
10 атм
Вес
—
80 кг
Под заказ
Наши менеджеры обязательно свяжутся с вами и уточнят условия заказа
Производитель
—
АСО Бежецк
Давление
—
16 атм
Вес
—
173 кг
Под заказ
Наши менеджеры обязательно свяжутся с вами и уточнят условия заказа
Производитель
—
АСО Бежецк
Давление
—
10 атм
Вес
—
128 кг
Под заказ
Наши менеджеры обязательно свяжутся с вами и уточнят условия заказа
Производитель
—
АСО Бежецк
Давление
—
10 атм
Вес
—
124 кг
Под заказ
Наши менеджеры обязательно свяжутся с вами и уточнят условия заказа
Производитель
—
АСО Бежецк
Давление
—
25 атм
Вес
—
124 кг
Под заказ
Наши менеджеры обязательно свяжутся с вами и уточнят условия заказа
Производитель
—
АСО Бежецк
Давление
—
16 атм
Вес
—
107 кг
Под заказ
Наши менеджеры обязательно свяжутся с вами и уточнят условия заказа
Производитель
—
АСО Бежецк
Давление
—
10 атм
Вес
—
92 кг
Под заказ
Наши менеджеры обязательно свяжутся с вами и уточнят условия заказа
Производитель
—
АСО Бежецк
Давление
—
10 атм
Вес
—
50 кг
По запросу
Под заказ
Наши менеджеры обязательно свяжутся с вами и уточнят условия заказа






